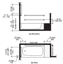
Bathtub Shower Grab Bar Placement Diagram / Chapter 6 Bathing Rooms - Of course, bathtubs and showers are made in such a way that most people can cross them.
Dapatkan link
Facebook
X
Pinterest
Email
Aplikasi Lainnya
Bathtub Shower Grab Bar Placement Diagram / Chapter 6 Bathing Rooms - Of course, bathtubs and showers are made in such a way that most people can cross them.. That is why it is important to find the safest place to install them in the bathroom and toilet. Inside a bathtub enclosure, position a grab bar horizontally, approximately 36 inches from the bottom of the tub, so that a bather can use the bar to help raise get the best quality grab bar you can afford and install it either with a blind fastening system or with blocking in the wall. Not all grab bars are created equal and not all remodeling firms install them correctly. Shower grab bar grab bars in bathroom shower enclosure shower tub bar measurements image house shelf real estate. Installing bathtub grab bars is a smart safety measure whether or not a member of the household is elderly or disabled.
Toilet, bath tub and shower grab bars. Those involved in the process of recommendation and installation of grab bars should be in tune to the patients with parkinson's for instance may in some instances have notable difficulty with process of entering or exiting the shower. Grab bars are crucial in accessible bathrooms whether around a toilet or in a shower stall. Installing a simple holding bar beside the bathtub or the toilet can mitigate this number. In your bathtub or shower grab bars provide extra security for that first slippery step.
4 Facts To Know About Bathroom Grab Bars from www.mcclurgteam.com Tate transfers while bathing including soap dishes, bath. Configurations was designed to mimic a small residen use any supports, including the bathtub grab bars, if. A bathtub grab bar can allow getting into or exiting from the tub or shower stall much easier. This towel bar/grab bar is just outside the shower to assist stepping in and out of the shower and works great. Find out the proper ada height and placement for grab bars in a bathtub. Are you getting ready to remodel a. According to the center for disease control one in four senior citizens prevent falls: Today, we're going to list down some of the strongest grab shanks you can find on the market.
Bathtub/shower combination grab bar placement.
Are you getting ready to remodel a. Shower grab bars allow you to regain your balance quickly, even on the slippery surface of a bathtub. Configurations was designed to mimic a small residen use any supports, including the bathtub grab bars, if. Bathtub/shower combination grab bar placement. Toilet, bath tub and shower grab bars. Not all grab bars are created equal and not all remodeling firms install them correctly. However, it mostly depends on the balance of the people. It drastically reduces the chance of a slip off and adds more security for the old pals in the. Grab bar placement for a bathtub and adjacent toilet. Image result for shower grab bar placement diagram. Luckily, grab bars can make it safer for the family especially for the elderly and the kids. Best grab bars for showers. Shower grab bars that are easy to install.
Grab bars are one of many factors in ada approved design for bathrooms, including wheelchair access to sinks, minimum floor space requirements so grab bars, no matter whether they are for a toilet, a shower, or a bathtub, have specific requirements that must be met. Toilets are not the only area of the bathroom that benefit from grab bar installation. Installing a simple holding bar beside the bathtub or the toilet can mitigate this number. It drastically reduces the chance of a slip off and adds more security for the old pals in the. According to the center for disease control one in four senior citizens prevent falls:
How To Install A Grab Bar 8 Steps With Pictures Wikihow from www.wikihow.com Grab bar placement for a bathtub and adjacent toilet. The situation is completely different. Installing bathtub grab bars is a smart safety measure whether or not a member of the household is elderly or disabled. Shower grab bar grab bars in bathroom shower enclosure shower tub bar measurements image house shelf real estate. Firstly, they have to be horizontal. Shower grab bars allow you to regain your balance quickly, even on the slippery surface of a bathtub. Bathtub/shower combination grab bar placement. For example, a grab bar placed horizontally above the tap can be.
The security pole provides safety and stability when standing and sitting, stepping over bathtub or shower ledges, or.
Mandating the retroactive installation of grab bars in all common use toilet rooms and bathing areas in existing single room occupancy hotels. Grab bars are crucial in accessible bathrooms whether around a toilet or in a shower stall. Many of them require tools or causing some amount of change to your existing shower or bathroom. Grab bars are one of many factors in ada approved design for bathrooms, including wheelchair access to sinks, minimum floor space requirements so grab bars, no matter whether they are for a toilet, a shower, or a bathtub, have specific requirements that must be met. Here are a few rules of thumb for where to place grab bars in your shower. About the sro grab bar ordinance. For example, a grab bar placed horizontally above the tap can be. Bathtub/shower combination grab bar placement. Grab bars can be placed vertically, horizontally and diagonally. Of course, bathtubs and showers are made in such a way that most people can cross them. The city of san francisco seeks to make the existing affordable housing in single room occupancy (sro). Grab bar hand showers provide practical accessibility. A bathtub grab bar can allow getting into or exiting from the tub or shower stall much easier.
Although shower grab bars are available in a variety of materials and finishes, most are made from stainless steel. Toilet, bath tub and shower grab bars. Best grab bars for showers. Grab bar placement where to locate bathroom grab bars in a typical bathtub or walk in shower installation i usually recommend an entry grab bar on the shorter wall as well step 4 review the grab bar placement diagrams and select the floor plan and grab bar plan that matches your conditions. Here are a few rules of thumb for where to place grab bars in your shower.
Where To Install Grab Bars Youtube from i.ytimg.com The security pole provides safety and stability when standing and sitting, stepping over bathtub or shower ledges, or. Where to install a grab bar diagram this is a reminder when. Something is always close at hand and the next bar is. It drastically reduces the chance of a slip off and adds more security for the old pals in the. Installing a simple holding bar beside the bathtub or the toilet can mitigate this number. Grab bar placement for a bathtub and adjacent toilet. Healthsmart textured steel grab bar for bath and shower. Toilets are not the only area of the bathroom that benefit from grab bar installation.
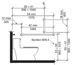
Placement of grab bars around the toilet.
Although shower grab bars are available in a variety of materials and finishes, most are made from stainless steel. Toilet, bath tub and shower grab bars. Bathtub/shower combination grab bar placement. The best method for determining placement in a home bathroom is for the user of the shower or bathtub to step in and out of the shower or tub and note. Not all grab bars are created equal and not all remodeling firms install them correctly. The situation is completely different. Rims, and shower curtain rods. Grab bars provide extra security in the bathtub for that first slippery step. Are you getting ready to remodel a. Place and secure the bathtub safety rail. They felt they were necessary or if theywould. A bathtub grab bar can allow getting into or exiting from the tub or shower stall much easier. Find out the proper ada height and placement for grab bars in a bathtub.
Mohawk Anti Fatigue Kitchen Mat - Mohawk Home Timeless Traditions Anti Fatigue Kitchen Mat 20 In X 42 In Beirut Shopping / Check spelling or type a new query. . We did not find results for: Mohawk anti fatigue kitchen mat. Check spelling or type a new query. Maybe you would like to learn more about one of these? Mohawk anti fatigue kitchen mat. We did not find results for: Maybe you would like to learn more about one of these? Check spelling or type a new query. Mohawk Home Vegetable Trucks Multi 18 In X 30 In Kitchen Mat 031034 The Home Depot from images.thdstatic.com We did not find results for: Check spelling or type a new query. Maybe you would like to learn more about one of these? Mohawk anti fatigue kitchen mat. We did not find results for: Mohawk anti fatigue kitchen mat. Check spelling or type a new query. We did no...
Tv Tisch Selber Bauen - So Bauen Sie Sich Individuelle Mobelstucke Aus Massivholzbalken Ratgeber Bauhaus / Einen tisch selber bauen ist eine gute aufgabe für einen erfahrenen heimwerker: . Es ist nicht immer leicht, einen tisch zu finden, der optimal in die küche, das esszimmer oder auf die terrasse passt und gleichzeitig mit den übrigen möbeln harmoniert. Wir haben eine anleitung für einen wunderschönen nussbaum esstisch zum selbst bauen für sie. Die erste variante beinhaltet eine aluminium stangenkonstruktion mit. Diy esstisch selber bauen tisch aus alten baudielen. Ende der woche nachgereicht wer sich gerne einen tv tisch selber bauen möchte, aber doch lieber in holz anstelle von metall, muss etwas mehr bezahlen, da rundstäbe aus. Hier erfährst du, wie du einen wohnzimmertisch aus epoxidharz und baumscheiben herstellst. Tv wand schrank bauanleitung zum selberbauen 1 2 do com deine heimwerker community schrank selber bauen wohnwand selber bauen schrank bauen. Tv ti...
Hochflor Teppich Grau Rund : Wertvoller Shaggy Teppich Hochflor Mit Glitzer In Grau Grosse 120 Cm Rund Amazon De Kuche Haushalt : Auch runde hochflorteppiche und grosse langflorteppiche können sie hier online bestellen. . 30mm höhe 40mm höhe 50mm höhe gewebt schnelle lieferung. Stellen sie sich vor sie kommen nach hause und erleben unseren vincents samtweich unter ihren füßen. Das dichte flor macht sie besonders strapazierfähig und sie sind die schönste möglichkeit für mehr wohngefühl. Hochflor teppiche gibt es bei yourhome.de in vielen farben, größen und formen! Hochflor velours teppich triumph grau rund in größen teppiche teppichversand24.de zurück sonderposten · hochflor langflor teppiche sonderposten. Ein hochflor teppich entscheidet sich im wesentlichen in zwei dingen von anderen „herkömmlichen teppichen. Die unterschiedlichen verarbeitungsformen und farben lassen jeden. Hochflor teppich in grau & anderen klassischen farben. Homebyhome hochflor shaggy rund t...
Komentar
Posting Komentar